PC 90

Impiego

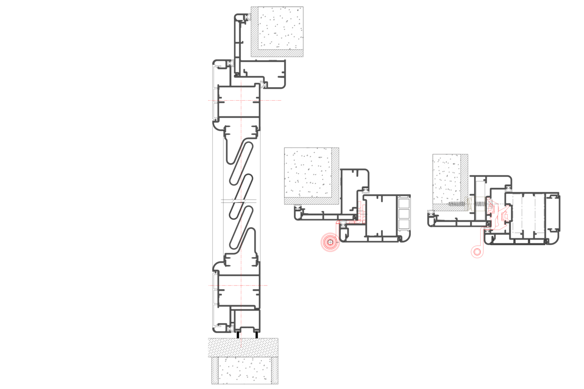
Profilati che consentono la costruzione di persiane ad una o più ante a battente con effetto taglio a 90°.

Dati tecnici

Profilati estrusi lega: ENAW 6060 (EN 573 – 3)
Stato di fornitura: T5 (EN 752 – 2)
Tolleranze dimensioni e spessori:: EN 755 – 9
Tipo di tenuta: Doppia battuta
Telaio fisso: mm. 55 x 76
Aletta di battuta a muro: mm. 40
Telaio mobile: mm. 51 x 76
Meccanismo lamelle: fisso od orientabile con cava 35 x 14
Accessori: tipo Rustico
Giunzione angolare telaio ed anta: con squadrette tubolarità mm.10.4 x mm. 42.2 o in alternativa 15.2 mm. x 29.2 mm.
Telaio fisso: mm. 55
Aletta di battuta a muro: mm. 40
Telaio mobile: mm. 51 x 80
Meccanismo lamelle: fisso od orientabile con cava 35 x 14
Accessori: a camera Unificata spazio mm. 14
Giunzione angolare telaio ed anta: con squadrette tubolarità mm.10.4 x mm. 42.2 o in alternativa 15.2 mm. x 29.2 mm.