PS 450

Impiego

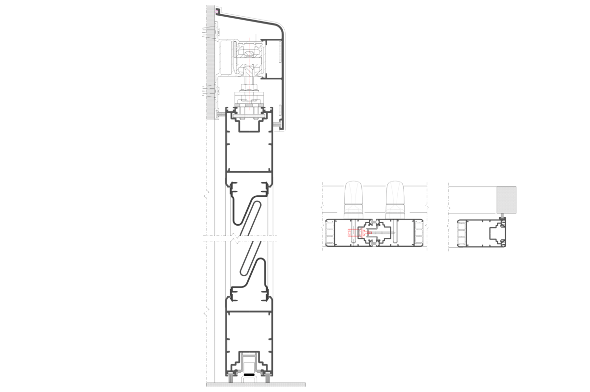
Profilati che consentono la costruzione di persiane ad una o due ante scorrevoli.

Dati tecnici

Profilati estrusi lega: ENAW 6060 ( EN 573 – 3)
Stato di fornitura: T5 (EN 752 – 2)
Tolleranze dimensioni e spessori: EN 755 – 9
Tipo di tenuta: Con spazzolini.
Telaio fisso: guida scorrevole opera muraria
Telaio mobile: anta in alluminio da mm. 45 x 76
Meccanismo lamelle: fisso od orientabile con cava 35 x 14
Giunzione angolare telaio ed anta: con squadrette tubolarità mm.10.4 x mm. 42.2 o in alternativa 15.2 mm. x 29.2 mm.